Dolda gångjärn
Dolda gångjärn
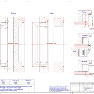
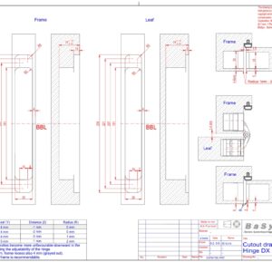
Basys dolda justerbara gångjärn
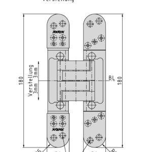
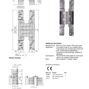
Pivota ® DX är en modell som erbjuder ett brett spektrum av funktionalitet. Vi tillhandahåller ett jämförbart och fullt utvecklat program med dolda gångjärn och lamellgångjärn där den funktionella principen med den tredimensionella justerbarheten erbjuder de olika gångjärnsmodellerna, inom sitt tillämpningsområde, en övertygande lösning, exempelvis i dold karm eller portaler. Dessutom betonar den eleganta DX-designen gångjärnets betydelse som ett designobjekt i modern inredning för arkitekter som eftersträvar rena linjer.
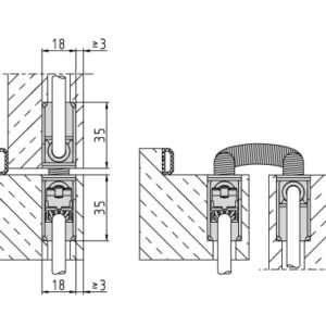
DX-gångjärnen är tillverkade av aluminium- och stålkomponenter, och kan klara upp till 350 kg dörrvikter (per par) De kan monteras i karmar av trä, stål eller aluminium.
PIVOTA ® DX står för tillförlitlighet och hållbarhet – tillhandahålls bland annat av dess extremt stabila länkmekanism. På grund av de sofistikerade lagren och det exceptionella rörelsemönstret har våra DX-gångjärn satt standarden i funktionstester. Dörren kan justeras utan att länkmekanismen påverkas.
Sortimentet omfattar även justerbara objektsgångjärn för tunga innerdörrar.
 
		 
				 
		 
				 
		 
				 
		 
				 
		 
				 
				 
		 
				 
		 
		 
				 
		 
				 
		 
		 
				 
		 
				 
		 
				 
		 
				 
		 
				 
		 
				 
		 
				 
		 
				 
		 
				 
		